stahovák na pružiny
stahovák na pružiny
zdravím chlapy než začnu stahovák na pružiny vyrábět tak se chci zeptat jesli ho nemáte někdo na půjčení.
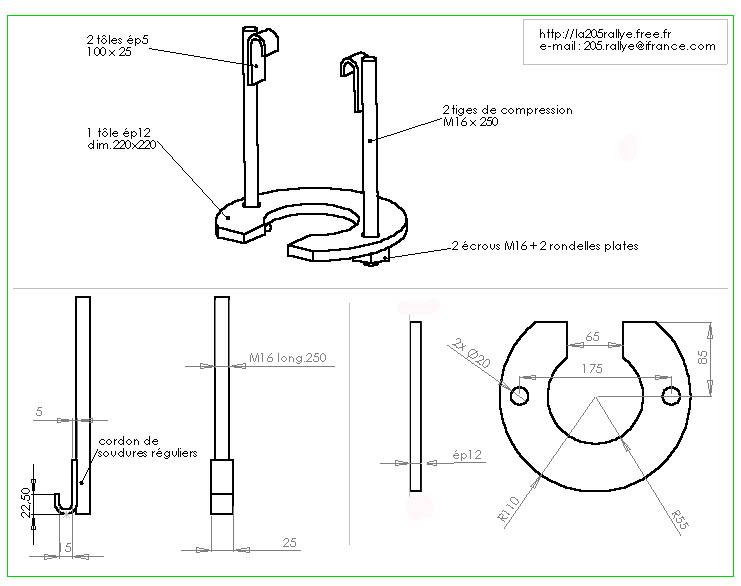
jinak tady je výkres pro ty co si ho budou chtít udělat
jinak tady je výkres pro ty co si ho budou chtít udělat
- Přílohy
-
- stahovák na pružiny.jpg (51.15 KiB) Zobrazeno 11152 x
Re: stahovák na pružiny
to je vykres primo na 205kove pruziny?
Jinak nekdo na stahovani pruzin pouziva stahovaci popruhy co se pouzivaji na uvazovani nakladu - tzv. kurtny, to jen tak kdyby se nekomu nechtelo utracet za ty zeleza.
Jinak nekdo na stahovani pruzin pouziva stahovaci popruhy co se pouzivaji na uvazovani nakladu - tzv. kurtny, to jen tak kdyby se nekomu nechtelo utracet za ty zeleza.

Re: stahovák na pružiny
je to dělaný na 205tky především rallye
- draken
- Club admin

- Příspěvky: 7972
- Registrován: 12 črc 2009 18:21
- Rok narození: 1991
- Skutečné jméno: Honza
- tel.:: 732440821
- Bydliště: Hr. Králové, Nový Bydžov
Re: stahovák na pružiny
já ten stahovák dyžtak mám na chalupě. jestli chceš přezout pružiny, tak se můžem domluvit
Re: stahovák na pružiny
přesně tak potřeboval bych je vyměnit
- draken
- Club admin

- Příspěvky: 7972
- Registrován: 12 črc 2009 18:21
- Rok narození: 1991
- Skutečné jméno: Honza
- tel.:: 732440821
- Bydliště: Hr. Králové, Nový Bydžov
Re: stahovák na pružiny
tak jestli se ti bude chtít k novýmu bydžovu, tak není problém, ale musíš je přezout tady já ten stahovák budu teď potřebovat
Re: stahovák na pružiny
budu shánět dál je to pro mě zruky asi si ho udělám
- MSCH205
- Stálý inventář 205clubu

- Příspěvky: 3866
- Registrován: 15 zář 2008 17:43
- Rok narození: 1989
- Skutečné jméno: Roman
- tel.:: 732235260
- Bydliště: Polička
- Kontaktovat uživatele:
Re: stahovák na pružiny
ve svěráku to nejde?
myslíš že to stáhnu, takovou svěrkou která má 2x M6 závity, nebo je to velká síla na ty M6tky?
Peugeot 205 Roland Garros cabrio Originální klasika na léto
Saab 9000 CS Dělník bez šneka
Saab 900 Talladega prostě Sob, zatím serie
Saab 9000 Anniversary/aero Maptun Stage IV.
Saab 9000 CS Dělník bez šneka
Saab 900 Talladega prostě Sob, zatím serie
Saab 9000 Anniversary/aero Maptun Stage IV.
- Venkovak
- Stálý inventář 205clubu

- Příspěvky: 1664
- Registrován: 10 čer 2009 20:19
- Rok narození: 1989
- Skutečné jméno: Kamil
- tel.:: 603302746
- Bydliště: Plánice-Plzeňský kraj
- Kontaktovat uživatele:
Re: stahovák na pružiny
Mě péro stahuje mladá ty voe
Jako ve svěráku to nezkoušej
z toho si sedneš na prdel jako já
Jináč mam taky stahováky.
Jako ve svěráku to nezkoušej
Náhradní díly na většinu vozidel,i originál.
Peugeot 405 1.9TD-momentální přibližovadlo.
http://forum.205gti.org/viewtopic.php?f=10&t=6999..
Peugeot 405 1.9TD-momentální přibližovadlo.
http://forum.205gti.org/viewtopic.php?f=10&t=6999..
- draken
- Club admin

- Příspěvky: 7972
- Registrován: 12 črc 2009 18:21
- Rok narození: 1991
- Skutečné jméno: Honza
- tel.:: 732440821
- Bydliště: Hr. Králové, Nový Bydžov
Re: stahovák na pružiny
ještě že je po desátý
jinak kdysi sem viděl v autokelly asi za 2 kila takový pěkný stahováčky, ale teď už se mě je najít nepovedlo, jinak já mám starej podstivej stahovák se šroubem průměr tak 30 mm, nevim jestli by to ty m6 udržely, ale spíš záleží na materiálu
jinak kdysi sem viděl v autokelly asi za 2 kila takový pěkný stahováčky, ale teď už se mě je najít nepovedlo, jinak já mám starej podstivej stahovák se šroubem průměr tak 30 mm, nevim jestli by to ty m6 udržely, ale spíš záleží na materiálu
- Venkovak
- Stálý inventář 205clubu

- Příspěvky: 1664
- Registrován: 10 čer 2009 20:19
- Rok narození: 1989
- Skutečné jméno: Kamil
- tel.:: 603302746
- Bydliště: Plánice-Plzeňský kraj
- Kontaktovat uživatele:
Re: stahovák na pružiny
Jo doma mam takový mrchy stahováky,nějaký M12 závit a zobáky na koncích,ale beru si v práci pořádnej stahovák,co se musí upnout do svěráku a točí se klikou.No prostě neskutečně dobrej pomocník 
Náhradní díly na většinu vozidel,i originál.
Peugeot 405 1.9TD-momentální přibližovadlo.
http://forum.205gti.org/viewtopic.php?f=10&t=6999..
Peugeot 405 1.9TD-momentální přibližovadlo.
http://forum.205gti.org/viewtopic.php?f=10&t=6999..
- draken
- Club admin

- Příspěvky: 7972
- Registrován: 12 črc 2009 18:21
- Rok narození: 1991
- Skutečné jméno: Honza
- tel.:: 732440821
- Bydliště: Hr. Králové, Nový Bydžov
Re: stahovák na pružiny
dokonce sem našel i obrázek. není to úplně ono, ale konstrukce stejná
- Přílohy
-
- Bez názvu.jpg (59.32 KiB) Zobrazeno 10985 x
- Zdenek
- Stálý inventář 205clubu

- Příspěvky: 1719
- Registrován: 13 kvě 2008 20:35
- Rok narození: 1986
- Skutečné jméno: Zdenek
- Bydliště: Čerčany
- Kontaktovat uživatele:
Re: stahovák na pružiny
Vymýšlíte zbytečně složitý věci
Stačí dvě žávitovky M12 a na čtyři kousky trubky odpovídajícího průměru navařit háček z plocháče. Výroba max.na hoďku a cena tak 100,-Kč, když to budete dělat z novýho materiálu
Stačí dvě žávitovky M12 a na čtyři kousky trubky odpovídajícího průměru navařit háček z plocháče. Výroba max.na hoďku a cena tak 100,-Kč, když to budete dělat z novýho materiálu
205 1,9 GTI 94kW - další gti ve věčných lovištích 
205 1,6 GTI 75kW - sešrotováno
205 1,9 GTI 94kW - uloženka
205 1,9 GTI 88kW - ve výstavbě - 6q převodovka, 94kW motor
DUCATI Monster 2001
205 1,6 GTI 75kW - sešrotováno
205 1,9 GTI 94kW - uloženka
205 1,9 GTI 88kW - ve výstavbě - 6q převodovka, 94kW motor
DUCATI Monster 2001
Re: stahovák na pružiny
tohle se mi líbí rychlý a elegantní řešení