elektro na motor 1.6 65 Kw
-
spajk0
- Nováček

- Příspěvky: 27
- Registrován: 21 dub 2012 22:16
- Rok narození: 1990
- Skutečné jméno: Petr zajicek
- Bydliště: liberecký kraj ;)
elektro na motor 1.6 65 Kw
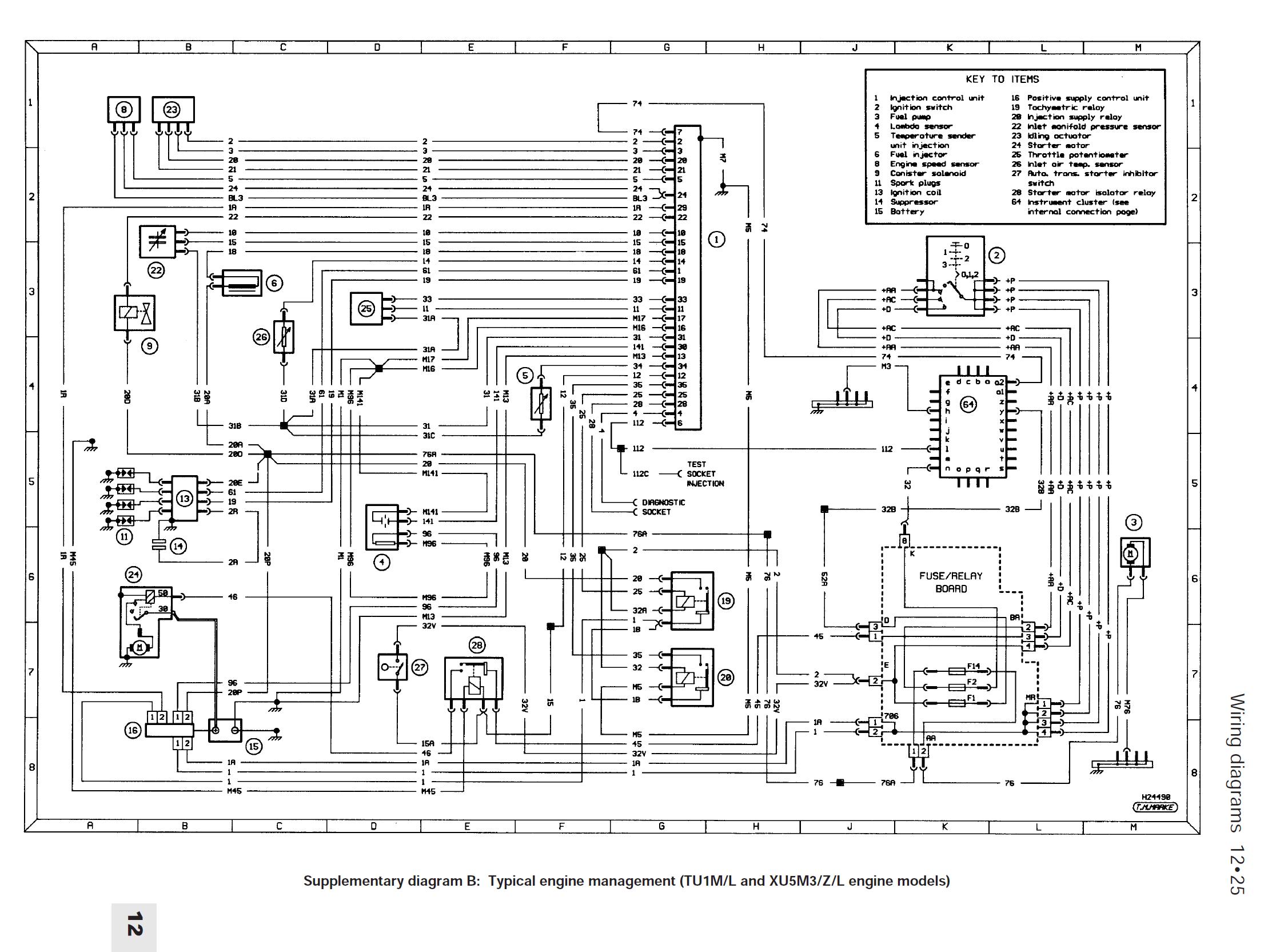
Zdravím pánové mám doma ještě krom mojí 205 i peginu 309 s motorem 1.6 65 Kw jednobod vstřik .... a chtěl bych se optat zda někdo nemá komplet elektroinstalaci .... jelikož mi bratr roztříhal elektriku a a viházel... Je mi toho motoru líto a chtěl bych to zas rozjezdit mam elektro pouze od jednotky k motoru ...ale chybí i čast co jde z pojistkové skříně ke konektorům u jednotky...tak se chci optat zda nemá někdo komplet schéma té kabeláže nebo rovnou celou kabeláž...děkuji za odpovědi....
-
spajk0
- Nováček

- Příspěvky: 27
- Registrován: 21 dub 2012 22:16
- Rok narození: 1990
- Skutečné jméno: Petr zajicek
- Bydliště: liberecký kraj ;)
Re: elektro na motor 1.6 65 Kw
dekuji mockrát pane


