budiky GTI jak zapojit otackomer???
- LukasGT
- Aktivní uživatel

- Příspěvky: 271
- Registrován: 06 čer 2008 17:53
- Rok narození: 1988
- Skutečné jméno: Lukas
- Bydliště: Příbram
- Kontaktovat uživatele:
budiky GTI jak zapojit otackomer???
ahoj snad mi tu nekdo poradi?ja jsem sehnal budiky z GTi ktery melo rozdelovac mo je 205 uz nema rozdelovac ma us ten modul a mam motor XU,kdyz jsem pripojil otackomer tak mi nejde do konektoru mi jdou ctyri kabeli z otackomeru taky,jestli nevite jak to ma bejkt zapojeny nebo musim sehnat otackomez z verze ktera nema rozdelovac??nebo mate nekdo treba Schema?? prilozim fotky snad nekdo bude vedet Dik Lukas
Peugeot 205GT1.6 66Kw
Peugeot 205 GTi 1.9 74kw už zněj zbylo par věcí :-)
Yamaha YZ426F 2001
Seat Ibiza 1.9 Tdi Gt AFN 81kw
Prodej náhradních Dílů VW Seat Audi
Peugeot 205 GTi 1.9 74kw už zněj zbylo par věcí :-)
Yamaha YZ426F 2001
Seat Ibiza 1.9 Tdi Gt AFN 81kw
Prodej náhradních Dílů VW Seat Audi
- vinorak
- odborník

- Příspěvky: 11375
- Registrován: 10 kvě 2007 13:02
- Rok narození: 1986
- Skutečné jméno: Tomas
- tel.:: 0
- Bydliště: Praha
Re: budiky GTI jak zapojit otackomer???
no fungovat by to mělo naprosto stejně, jelikož všechny benzínový otáčkoměry fungují na stejnym principu
jestli ti do teď šel otáčkoměr tak problém bude akorát v přehozených drátech, nebo v samotnym budíku.
Ale jinak já mám k otáčkoměru jenom tři dráty a to +, kostru a 112(signál) a otáčkoměr má sice 4 piny ale zapojený jsou jenom 3
Ale jinak já mám k otáčkoměru jenom tři dráty a to +, kostru a 112(signál) a otáčkoměr má sice 4 piny ale zapojený jsou jenom 3
- LukasGT
- Aktivní uživatel

- Příspěvky: 271
- Registrován: 06 čer 2008 17:53
- Rok narození: 1988
- Skutečné jméno: Lukas
- Bydliště: Příbram
- Kontaktovat uživatele:
Re: budiky GTI jak zapojit otackomer???
me otackomer sel na tom GTi a nevim jak to ma bejt zapojeni mel jsem tam pretim otackomer nez jsem tam daval z GTI tak jsem mel zapojeny vsechy ctyrivinorak píše:no fungovat by to mělo naprosto stejně, jelikož všechny benzínový otáčkoměry fungují na stejnym principujestli ti do teď šel otáčkoměr tak problém bude akorát v přehozených drátech, nebo v samotnym budíku.
Ale jinak já mám k otáčkoměru jenom tři dráty a to +, kostru a 112(signál) a otáčkoměr má sice 4 piny ale zapojený jsou jenom 3
Peugeot 205GT1.6 66Kw
Peugeot 205 GTi 1.9 74kw už zněj zbylo par věcí :-)
Yamaha YZ426F 2001
Seat Ibiza 1.9 Tdi Gt AFN 81kw
Prodej náhradních Dílů VW Seat Audi
Peugeot 205 GTi 1.9 74kw už zněj zbylo par věcí :-)
Yamaha YZ426F 2001
Seat Ibiza 1.9 Tdi Gt AFN 81kw
Prodej náhradních Dílů VW Seat Audi
- vinorak
- odborník

- Příspěvky: 11375
- Registrován: 10 kvě 2007 13:02
- Rok narození: 1986
- Skutečné jméno: Tomas
- tel.:: 0
- Bydliště: Praha
Re: budiky GTI jak zapojit otackomer???
LukasGT píše:me otackomer sel na tom GTi a nevim jak to ma bejt zapojeni mel jsem tam pretim otackomer nez jsem tam daval z GTI tak jsem mel zapojeny vsechy ctyrivinorak píše:no fungovat by to mělo naprosto stejně, jelikož všechny benzínový otáčkoměry fungují na stejnym principujestli ti do teď šel otáčkoměr tak problém bude akorát v přehozených drátech, nebo v samotnym budíku.
Ale jinak já mám k otáčkoměru jenom tři dráty a to +, kostru a 112(signál) a otáčkoměr má sice 4 piny ale zapojený jsou jenom 3
no je mi divný, že byl to nefungovalo
- LukasGT
- Aktivní uživatel

- Příspěvky: 271
- Registrován: 06 čer 2008 17:53
- Rok narození: 1988
- Skutečné jméno: Lukas
- Bydliště: Příbram
- Kontaktovat uživatele:
Re: budiky GTI jak zapojit otackomer???
tak to taky nevim snad nekde sezenu naky schema.
Peugeot 205GT1.6 66Kw
Peugeot 205 GTi 1.9 74kw už zněj zbylo par věcí :-)
Yamaha YZ426F 2001
Seat Ibiza 1.9 Tdi Gt AFN 81kw
Prodej náhradních Dílů VW Seat Audi
Peugeot 205 GTi 1.9 74kw už zněj zbylo par věcí :-)
Yamaha YZ426F 2001
Seat Ibiza 1.9 Tdi Gt AFN 81kw
Prodej náhradních Dílů VW Seat Audi
- TomGTI
- 205club je můj domov

- Příspěvky: 1043
- Registrován: 17 led 2006 15:58
- Bydliště: Vsetín
- Kontaktovat uživatele:
Re: budiky GTI jak zapojit otackomer???
Chtělo by to první se naučit psát trošku srozumitelně.Z tvojeho příspěvku jsem toho moc nepochopil,z té poloviny co jsem pochopil tak ti poradím že to co máš teďka ti fungovat nebude neboť máš dvě rozdílné věci které nelze spojit v jednu funkční 
- LukasGT
- Aktivní uživatel

- Příspěvky: 271
- Registrován: 06 čer 2008 17:53
- Rok narození: 1988
- Skutečné jméno: Lukas
- Bydliště: Příbram
- Kontaktovat uživatele:
Re: budiky GTI jak zapojit otackomer???
jasny stim psanim se polepsim:-),jaky veci rad si necham poradit.
Peugeot 205GT1.6 66Kw
Peugeot 205 GTi 1.9 74kw už zněj zbylo par věcí :-)
Yamaha YZ426F 2001
Seat Ibiza 1.9 Tdi Gt AFN 81kw
Prodej náhradních Dílů VW Seat Audi
Peugeot 205 GTi 1.9 74kw už zněj zbylo par věcí :-)
Yamaha YZ426F 2001
Seat Ibiza 1.9 Tdi Gt AFN 81kw
Prodej náhradních Dílů VW Seat Audi
Re: budiky GTI jak zapojit otackomer???
když nejde tak zkus přehodit dráty může to být jen jiné zapojení a v horším případě je otáčkoměr nefunkční.
xsaraII 1,4i 55kw break 2001
Re: budiky GTI jak zapojit otackomer???
a s těma kabelama že jich je víc nebo míň bych neřešil každý kabel k něčemuj je a otáčkoměr má i dva dráty a více třeba i pět ale vždy musí být zapojené pro lepší funkci
xsaraII 1,4i 55kw break 2001
- LukasGT
- Aktivní uživatel

- Příspěvky: 271
- Registrován: 06 čer 2008 17:53
- Rok narození: 1988
- Skutečné jméno: Lukas
- Bydliště: Příbram
- Kontaktovat uživatele:
Re: budiky GTI jak zapojit otackomer???
a nevis ktrej z kabelu z toho otackomeru by melo jit na 112?
Peugeot 205GT1.6 66Kw
Peugeot 205 GTi 1.9 74kw už zněj zbylo par věcí :-)
Yamaha YZ426F 2001
Seat Ibiza 1.9 Tdi Gt AFN 81kw
Prodej náhradních Dílů VW Seat Audi
Peugeot 205 GTi 1.9 74kw už zněj zbylo par věcí :-)
Yamaha YZ426F 2001
Seat Ibiza 1.9 Tdi Gt AFN 81kw
Prodej náhradních Dílů VW Seat Audi
- vinorak
- odborník

- Příspěvky: 11375
- Registrován: 10 kvě 2007 13:02
- Rok narození: 1986
- Skutečné jméno: Tomas
- tel.:: 0
- Bydliště: Praha
Re: budiky GTI jak zapojit otackomer???
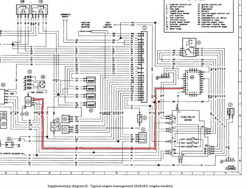
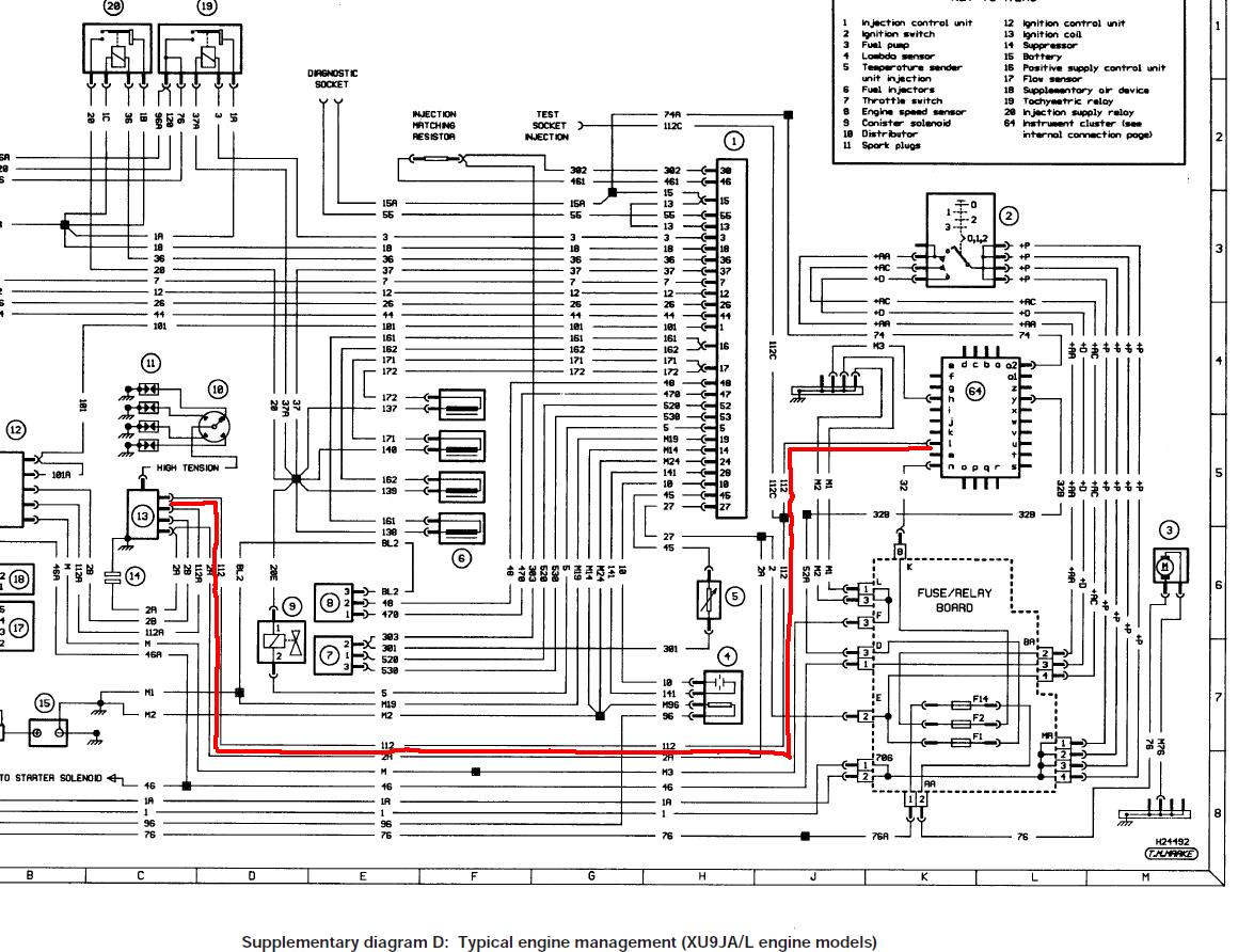
tak tady jsou dvě schémata, jedno pro klasiku 1.9 88kW a druhý pro jednobod XU5M
a v obou sckématech to je drát 112, jednou jde přímo od cívky a u jednobodu jde z řídící jednotky, Ale budík bude podle mě stejný
Jestli se pletu tak se nechám rád poučit 
a v obou sckématech to je drát 112, jednou jde přímo od cívky a u jednobodu jde z řídící jednotky, Ale budík bude podle mě stejný
- LukasGT
- Aktivní uživatel

- Příspěvky: 271
- Registrován: 06 čer 2008 17:53
- Rok narození: 1988
- Skutečné jméno: Lukas
- Bydliště: Příbram
- Kontaktovat uživatele:
Re: budiky GTI jak zapojit otackomer???
dik za schemata
jestli mate nekdo nakej napad tak sem snim.
Peugeot 205GT1.6 66Kw
Peugeot 205 GTi 1.9 74kw už zněj zbylo par věcí :-)
Yamaha YZ426F 2001
Seat Ibiza 1.9 Tdi Gt AFN 81kw
Prodej náhradních Dílů VW Seat Audi
Peugeot 205 GTi 1.9 74kw už zněj zbylo par věcí :-)
Yamaha YZ426F 2001
Seat Ibiza 1.9 Tdi Gt AFN 81kw
Prodej náhradních Dílů VW Seat Audi
- WoMec
- Stálý inventář 205clubu

- Příspěvky: 6592
- Registrován: 05 led 2008 14:30
- Rok narození: 1987
- Skutečné jméno: Honza
- tel.:: 775037752
- Bydliště: Vyškov
Re: budiky GTI jak zapojit otackomer???
promeř si patici na otáčkoměru jestli tám nemáš 2 pozice spojený .. GTi budíky mají zapojení
1. klickové plus
2. minus
3. signal z civky
4. minus
kde 2. a 3. pin jsou v otáčkomeru propojené na tišťáku
na Bx jsou propojené piny 2. a 3. ... a signal se přivádí na 4. pin ...
jinak podlě mě musí byt princip stejný .. tedy na otáčkomer přivádíš napájené (kličkové plus a minus) a signal ... tak druhá zem je tam jenom pro lepší zemnění, tedy přesnější měření ...
zkus drat 112 zapojit přímo na signálový pin otáčkoměru ;)
1. klickové plus
2. minus
3. signal z civky
4. minus
kde 2. a 3. pin jsou v otáčkomeru propojené na tišťáku
na Bx jsou propojené piny 2. a 3. ... a signal se přivádí na 4. pin ...
jinak podlě mě musí byt princip stejný .. tedy na otáčkomer přivádíš napájené (kličkové plus a minus) a signal ... tak druhá zem je tam jenom pro lepší zemnění, tedy přesnější měření ...
zkus drat 112 zapojit přímo na signálový pin otáčkoměru ;)
- LukasGT
- Aktivní uživatel

- Příspěvky: 271
- Registrován: 06 čer 2008 17:53
- Rok narození: 1988
- Skutečné jméno: Lukas
- Bydliště: Příbram
- Kontaktovat uživatele:
Re: budiky GTI jak zapojit otackomer???
tak jo zkusimto,jak tam ma ty ctyri kabeli z vyvedeny z otackomeru jeden je cervenej modrej a dav zluty ty jak zapojim?
Peugeot 205GT1.6 66Kw
Peugeot 205 GTi 1.9 74kw už zněj zbylo par věcí :-)
Yamaha YZ426F 2001
Seat Ibiza 1.9 Tdi Gt AFN 81kw
Prodej náhradních Dílů VW Seat Audi
Peugeot 205 GTi 1.9 74kw už zněj zbylo par věcí :-)
Yamaha YZ426F 2001
Seat Ibiza 1.9 Tdi Gt AFN 81kw
Prodej náhradních Dílů VW Seat Audi
- WoMec
- Stálý inventář 205clubu

- Příspěvky: 6592
- Registrován: 05 led 2008 14:30
- Rok narození: 1987
- Skutečné jméno: Honza
- tel.:: 775037752
- Bydliště: Vyškov
Re: budiky GTI jak zapojit otackomer???
cerveny plus, modry minus, zluty signal ... pamatuješ si jak byly naskládaný v tom konektoru ???LukasGT píše:tak jo zkusimto,jak tam ma ty ctyri kabeli z vyvedeny z otackomeru jeden je cervenej modrej a dav zluty ty jak zapojim?

