na plastech v interiéru to je .. ale jelikož jsem kupoval budíky samostatně tak nemám možnost...renm píše:nevím jestli zrovna na budíkách ale většina plastových dílů má vyražené takové kolečko s rokem výroby a nějakýma údajema z čeho ten plast je a tak...zkus hledatWoMec píše:tak mě napadlo ... dá se někde na budíkách vyčíst rok výroby ???
Jak vyměnit budíky
- WoMec
- Stálý inventář 205clubu

- Příspěvky: 6592
- Registrován: 05 led 2008 14:30
- Rok narození: 1987
- Skutečné jméno: Honza
- tel.:: 775037752
- Bydliště: Vyškov
Re: Jak vyměnit budíky
- WoMec
- Stálý inventář 205clubu

- Příspěvky: 6592
- Registrován: 05 led 2008 14:30
- Rok narození: 1987
- Skutečné jméno: Honza
- tel.:: 775037752
- Bydliště: Vyškov
Re: Jak vyměnit budíky
jak jsem tady psal že čidla teploty oleje se liší závitem .. tak je to proto aby se nedali zaměnit protože každé měří jinak (jedno má při 100°C 177ohmu a druhe 151ohmu) no a pro 2 ruzné čidla musí být 2 ruzné ukazatele teploty ... proto chci zjistit jestli z jakého roku mám budíky abych sehnal zprávné čidloHasis píše:jeejej a k cemu ti to je ty koumale jeden
- Mitja
- Stálý inventář 205clubu

- Příspěvky: 4659
- Registrován: 27 lis 2007 19:05
- Rok narození: 1986
- Skutečné jméno: Ondra
- tel.:: 0
- Bydliště: Studénka-Butovice
- Kontaktovat uživatele:
Re: Jak vyměnit budíky
tak připoj na kabely misto čidla potenciometr s nastavenyma 151 omh a mrkni na budiky kolik ukazujou stupnuWoMec píše:jak jsem tady psal že čidla teploty oleje se liší závitem .. tak je to proto aby se nedali zaměnit protože každé měří jinak (jedno má při 100°C 177ohmu a druhe 151ohmu) no a pro 2 ruzné čidla musí být 2 ruzné ukazatele teploty ... proto chci zjistit jestli z jakého roku mám budíky abych sehnal zprávné čidloHasis píše:jeejej a k cemu ti to je ty koumale jeden
---------------------------------------------------------------------------------------------------------------
Peugeot 205, 1.1i (44kw), color line, '91 - na vikendy
Renault Megane II sedan, 1.4 16V (72kw), sportway, '09 - hlavni auto
Peugeot 306 sedan, 1.6i (65kw), '95 - na dojezdeni
CPI Popcorn, 50 ccm, '03 - ceka na opravu
Škoda Fabia II 1.4 TDI (59kw), '06 - prace/Misa
Peugeot 205, 1.1i (44kw), color line, '91 - na vikendy
Renault Megane II sedan, 1.4 16V (72kw), sportway, '09 - hlavni auto
Peugeot 306 sedan, 1.6i (65kw), '95 - na dojezdeni
CPI Popcorn, 50 ccm, '03 - ceka na opravu
Škoda Fabia II 1.4 TDI (59kw), '06 - prace/Misa
- WoMec
- Stálý inventář 205clubu

- Příspěvky: 6592
- Registrován: 05 led 2008 14:30
- Rok narození: 1987
- Skutečné jméno: Honza
- tel.:: 775037752
- Bydliště: Vyškov
Re: Jak vyměnit budíky
Mitja píše:tak připoj na kabely misto čidla potenciometr s nastavenyma 151 omh a mrkni na budiky kolik ukazujou stupnuWoMec píše:jak jsem tady psal že čidla teploty oleje se liší závitem .. tak je to proto aby se nedali zaměnit protože každé měří jinak (jedno má při 100°C 177ohmu a druhe 151ohmu) no a pro 2 ruzné čidla musí být 2 ruzné ukazatele teploty ... proto chci zjistit jestli z jakého roku mám budíky abych sehnal zprávné čidloHasis píše:jeejej a k cemu ti to je ty koumale jeden
- WoMec
- Stálý inventář 205clubu

- Příspěvky: 6592
- Registrován: 05 led 2008 14:30
- Rok narození: 1987
- Skutečné jméno: Honza
- tel.:: 775037752
- Bydliště: Vyškov
Re: Jak vyměnit budíky
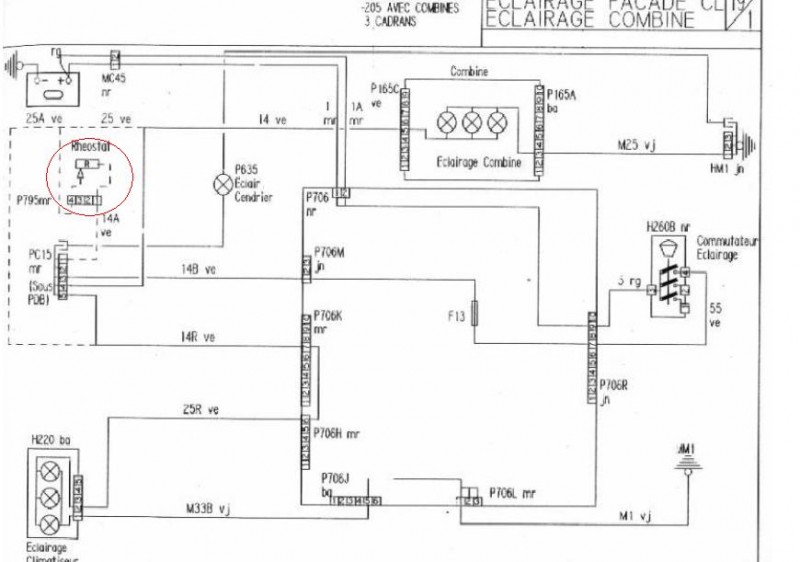
nevite někdo kam se pripojuje potenciometr podsvětlení budíků ??? nemám tam žádné kabely 
- vinorak
- odborník

- Příspěvky: 11375
- Registrován: 10 kvě 2007 13:02
- Rok narození: 1986
- Skutečné jméno: Tomas
- tel.:: 0
- Bydliště: Praha
Re: Jak vyměnit budíky
v těch schématech, co sem tu dal, je někde napsáno, jaký to sou dráty 
- WoMec
- Stálý inventář 205clubu

- Příspěvky: 6592
- Registrován: 05 led 2008 14:30
- Rok narození: 1987
- Skutečné jméno: Honza
- tel.:: 775037752
- Bydliště: Vyškov
Re: Jak vyměnit budíky
ja jsem prave procházel to PDFko se všema schematama a nejak jsem to nemohl najít ... ty tam ten potenciometr máš ?vinorak píše:v těch schématech, co sem tu dal, je někde napsáno, jaký to sou dráty
- vinorak
- odborník

- Příspěvky: 11375
- Registrován: 10 kvě 2007 13:02
- Rok narození: 1986
- Skutečné jméno: Tomas
- tel.:: 0
- Bydliště: Praha
Re: Jak vyměnit budíky
ne nemám, ale za to sem tam dal místo 1.2w 2w žárovky ajak mi to hezky svítí 
tak to si hledal blbě
tak to si hledal blbě
- WoMec
- Stálý inventář 205clubu

- Příspěvky: 6592
- Registrován: 05 led 2008 14:30
- Rok narození: 1987
- Skutečné jméno: Honza
- tel.:: 775037752
- Bydliště: Vyškov
Re: Jak vyměnit budíky
ja uvažuju nad ledkama .)vinorak píše:ne nemám, ale za to sem tam dal místo 1.2w 2w žárovky ajak mi to hezky svítí
tak to si hledal blbě
- laccko
- Uživatel

- Příspěvky: 50
- Registrován: 17 říj 2008 15:11
- Bydliště: Havířov
- Kontaktovat uživatele:
Re: Jak vyměnit budíky
Čest měl bych pár otázek. Přítelkině má 205green 1.1 r.v.91 no a není tam otáčkomě tak mě napadlo že bych ji mohl nahradit z GTi akorát vůbec netuším zdali je v tom autě snímač otáček (měl by tam být) a jestli by šel připojit nebo jak by se tam dal dostat.Předem dík
- laccko
- Uživatel

- Příspěvky: 50
- Registrován: 17 říj 2008 15:11
- Bydliště: Havířov
- Kontaktovat uživatele:
Re: Jak vyměnit budíky
Palubovku ne přítelkyni :lol:
- WoMec
- Stálý inventář 205clubu

- Příspěvky: 6592
- Registrován: 05 led 2008 14:30
- Rok narození: 1987
- Skutečné jméno: Honza
- tel.:: 775037752
- Bydliště: Vyškov
Re: Jak vyměnit budíky
snímač tam je ;) .. dokonce je od nej vyvedený drát k pojistkám .. tam končí .. takže si ho mušíš akorát prodloužit k budíkůmlaccko píše:Čest měl bych pár otázek. Přítelkině má 205green 1.1 r.v.91 no a není tam otáčkomě tak mě napadlo že bych ji mohl nahradit z GTi akorát vůbec netuším zdali je v tom autě snímač otáček (měl by tam být) a jestli by šel připojit nebo jak by se tam dal dostat.Předem dík
- vinorak
- odborník

- Příspěvky: 11375
- Registrován: 10 kvě 2007 13:02
- Rok narození: 1986
- Skutečné jméno: Tomas
- tel.:: 0
- Bydliště: Praha
Re: Jak vyměnit budíky
jojo modrý drát 112
kdyby sis to přečet celý tak to píšu na začátku 
- manko
- Stálý inventář 205clubu

- Příspěvky: 4313
- Registrován: 22 úno 2008 22:57
- Rok narození: 1990
- Skutečné jméno: Martin
- Bydliště: Senné (Okres VK)
- Kontaktovat uživatele:
Re: Jak vyměnit budíky
ahojte mam problem budíky so m uš prerobil aj kable som uš porobil ale ked dák klúčik do 1 alebo 2 polohy tak sa nič nedeje aš ked naštartujem a popridávam trocha tak aš potom zasvieti kontrolka ručnej brzdy zdvihne sa hladina benzinu atd,... Ale otáččkomer ide hned po naštartovaní .... a ja na mojich konektoroch z Gti nemam napriklad na 10 pinovom konektore plus klúčikové čo tam má byť ... podla schém čo si sem dal vinorak...
Peugeot 406 2,0 HDi 80kw 380 000 km 21.03.2001 4,9L / 100km :)
Peugeot 406 2,0 HDi 66kw 195 000 km 8.11.1999 5,3L / 100km
Peugeot 405 1.8 248 00 km 74kw 1995 Sorento Green + krémový interiér :)
čo bolo :
Peugeot 605 3.0 v6 208 000 Km 125 Kw 1992 Modrá
Peugeot 205 1.6 GTi 156 000 km 83kw 2.4.1993 Sorento Green Najkrajšie jazdy môjho života
Volkswagen Golf 3 1.4 CL Rozobraté na ND
Peugeot 205 1.9 GTi 88Kw Predané . Rozobraté na ND
Peugeot 205 1.1 44kw 143 000 Km Rv 1990 Takmer Rallye ....Predané...
Peugeot 205 1.9 GTi94Kw 1990 170 865 KM Teraz ho trápi Dypid
Peugeot 205 1.6 GTi 1986 163 000 Km :: R.I.P ::
Peugeot 405 MI16 Le Mans 210 000 Km 1989 Biela
Peugeot 405 1.6 (XU52C) 1992 101 000 Km Bez TP švajčiar... Jediný karburátor čo som mal
Peugeot 406 2,0 HDi 66kw 195 000 km 8.11.1999 5,3L / 100km
Peugeot 405 1.8 248 00 km 74kw 1995 Sorento Green + krémový interiér :)

čo bolo :
Peugeot 605 3.0 v6 208 000 Km 125 Kw 1992 Modrá
Peugeot 205 1.6 GTi 156 000 km 83kw 2.4.1993 Sorento Green Najkrajšie jazdy môjho života
Volkswagen Golf 3 1.4 CL Rozobraté na ND
Peugeot 205 1.9 GTi 88Kw Predané . Rozobraté na ND
Peugeot 205 1.1 44kw 143 000 Km Rv 1990 Takmer Rallye ....Predané...
Peugeot 205 1.9 GTi94Kw 1990 170 865 KM Teraz ho trápi Dypid
Peugeot 205 1.6 GTi 1986 163 000 Km :: R.I.P ::
Peugeot 405 MI16 Le Mans 210 000 Km 1989 Biela
Peugeot 405 1.6 (XU52C) 1992 101 000 Km Bez TP švajčiar... Jediný karburátor čo som mal

